Page en construction
C'est un projet d'immeuble de fonctions mixtes à 12 niveaux - parkings aux sous-sols, magasins, bureaux et logements, situé boulevard Dondoukov au centre de Sofia (3100 m²).
Façades :
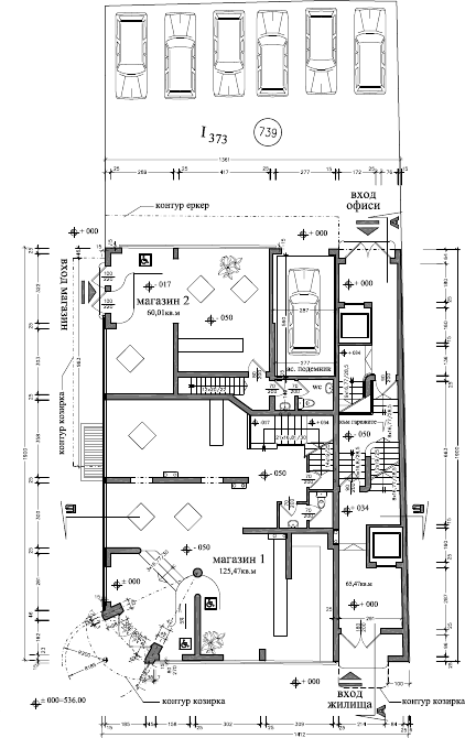
Plans des magasins et variantes (RdC, RdC+) :
Plans des bureaux (R+1) et des logements (R+2 à R+8) :
Variantes du plan des logements (niveaux R+4, R+5, R+6) :
Plan des sous-sols (caves, parkings) :
Planches entières de l'Avant-projet définitif :
Planches pour l'expo Revue de l'architecture bulgare :
Photos :
Ce projet est très intéressant sur plusieurs registres: l'architecte, avec sa très bonne connaissance des lois et des règles locales d'urbanisme, les a interprétées encore une fois de façon inhabituelle (mais justifiée et acceptée devant la commission de la mairie) pour augmenter la surface totale de l'immeuble de 700 m² par rapport aux estimations initiales de l'investisseur. Une cage d'escalier particulièrement astucieuse a permis d'y incorporer deux escaliers indépendants et deux ascenseurs, et d'obtenir ainsi un petit appartement ou un bureau de plus par étage. Un projet d'immeuble contenant des fonctions différentes, doit répondre à des exigences particulières notamment sur les flux des personnes.
L'immeuble est composé de: sous-sols, de rez-de-chaussé à double hauteur contenant deux magasins sur deux niveaux, un premier étage de bureaux, cinq étages résidentiels sous la cote de na corniche, et deux étages dans l'espace des combles.
C'est une parcelle d'angle mais l'immeuble est droit, bâti en mur mitoyen avec uniquement l'un des voisins sur le boulevard Dondoukov; sur rue il reste un espace vide (cour) entre l'immeuble et le voisin, du trottoir au fond de la parcelle. L'immeuble a donc trois façades principales, vues depuis la ville.
Au niveau bas du « rez-de-chaussée » se trouvent les deux entrées indépendantes (du côté Nord et du côté Sud), l'une pour les bureaux, l'autre pour les logements. Les rampes de deux escaliers indépendants s'entrecroisent; elles sont éclairées de lumière naturelle par la façade Nord. L'escalier dédié aux bureaux se termine au premier étage; celui aux logements monte jusqu'au dernier étage. Deux ascenseurs sont incorporés dans la cage de l'escalier. Une maquette de la cage d'escalier a été fabriquée pour illustrer le projet aux différentes commissions de la mairie et de la sécurité incendie.
Les magasins ont des accès directs depuis le trottoir, et un grand escalier vers leur second niveau. Un accès aux personnes à mobilité réduite est assuré à tous les niveaux accueillant du public.
Le premier sous-sol contient des pièces de service (locaux électriques, stockage des magasins et caves des logements; deux étages sous-terrains de parkings sont accessibles par un escalier et par un ascenseur de voitures.
Au premier étage (au dessus des magasins, élev. +536) se trouvent quatre locaux de bureaux avec leur propre accès et sécurité. Les étages résidentiels ont des plans très flexibles permettant des appartements de 1 et 3 pièces, ou deux de 2 pièces, ou de un 4 pièces, suivant les besoins de l'investisseur. Les deux étages des combles contiennent de grands appartements dont deux « duplex ».
Le système constructif est en voiles porteurs de béton armé, murs en briques, planchers de poutres noyées (sans retombées).
La volumétrie est expressive, avec une tour - accent architectural, sur l'angle du boulevard, le côté sud-ouest de l'immeuble. C'est un immeuble de grand standing. Les façades sont de pierre naturelle au socle du rez-de-chaussée, aux étages enduits en blanc et en beige, avec une façade suspendue entièrement vitrée des bureaux, des menuiseries en PVC double vitrage et des tuiles en asphalte rouge.
Avec se projet, j'ai appris beaucoup sur le vrai métier de l'architecte: un travail long et difficile, en plusieurs itérations, en coordination avec l'investisseur et les ingénieurs de la structure, avec un besoin d'une excellente connaissance des lois et des règles locales d'urbanisme qui permettent une plus grande liberté créatrice. En interprétant de façon inhabituelle ces règles, l'architecte a obtenu une SHON de 700 m² de plus que celle prévue initialement (même si ça coûte plus à l'investisseur de construire chaque mètre carré supplémentaire, en centre ville de Sofia il sera vendu 10 fois plus cher que son coût de revient). Une autre interprétation de la règle des immeubles d'angle, a permis le placement de deux poteaux très importants pour la stabilité structurelle. J'ai aussi appris qu'il faut savoir bien expliquer ses idées et justifier ses décisions car les commissions d' « experts » à la mairie ne sont pas toujours ouverts d'esprit pour les solutions novatrices.































